Этот проект — вторая вариация дома на участке заказчика с ограниченными условиями строительства. Первый вариант можно посмотреть по ссылке.
Получив отказ в строительстве двухэтажного дома, мы не стали отказываться от идеи, а деликатно перенесли все помещения второго уровня на первый этаж. Дом стал более протяжённым, но отсутствие лестниц сделало перемещение по пространству значительно удобнее и естественнее.
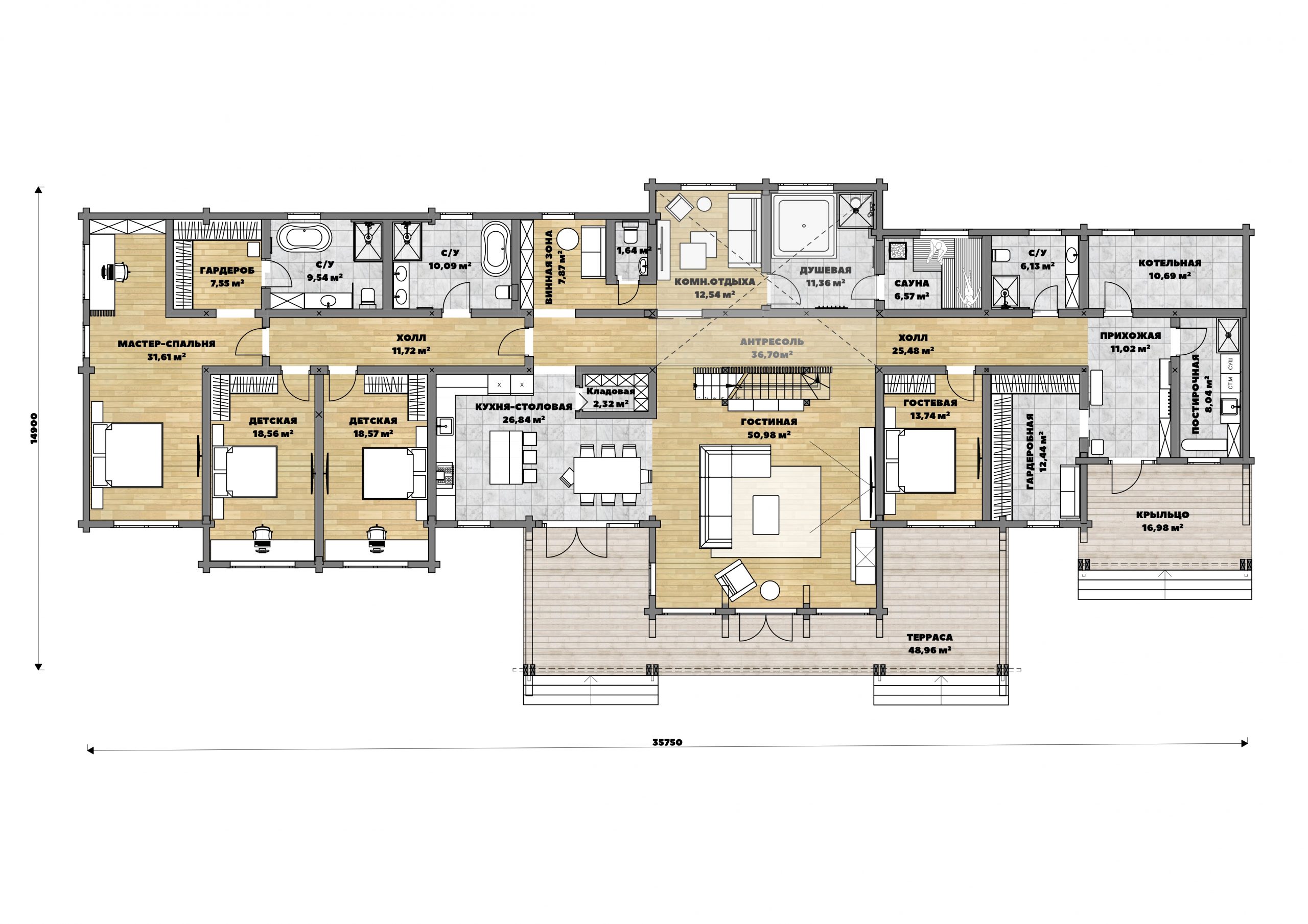
На архитектурное решение повлияли не только регламентирующие ограничения, но и сама форма участка, а также существующие на нём постройки. В результате дом приобрёл вытянутую прямоугольную форму. Все жилые помещения ориентированы на видовую часть участка, в то время как хозяйственные зоны обращены к забору.
Планировка выстроена как последовательный сценарий: из входной группы мы попадаем в гостиную, затем в столовую, которая плавно переходит в кухню и раскрывается в сторону участка, после общественной зоны следует приватная часть дома со спальнями.
Особой изюминкой проекта стал полноценный спа-блок: в доме предусмотрены сауна, джакузи, комната отдыха и даже винный уголок — пространство для восстановления, уединения и неспешного времяпрепровождения.
Дополнительный объём и вариативность пространству придаёт антресоль, примыкающая к гостиной. Здесь можно организовать кабинет, зону для чтения или игровую для детей, сохраняя визуальную связь с основным пространством дома.





